本次办公室设计师在设计的时候,打破传统办公室的设计思路,在空间中融入环保与健康的设计理念,同时整个空间给人一种穿越现实与虚拟的感觉,在空间中营造科技感与未来感。

平面方案的设计:设计师在设计的时候,基于动线的合理与空间的整体开发,在设计的时候为动线加入了新的属性,让动线可以自主的吸引客户,让动线的作用发挥到最大。

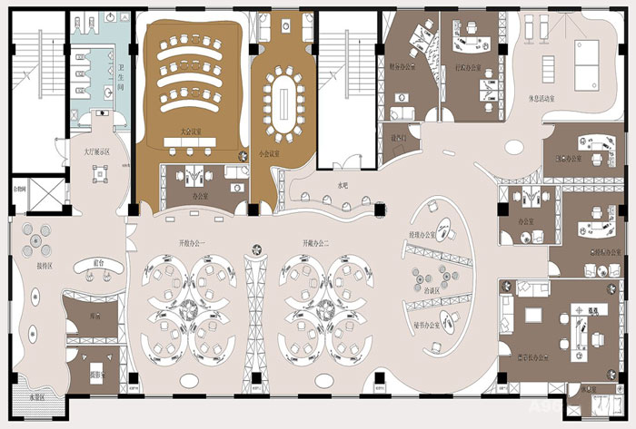
前台的设计:设计师在设计的时候,将前台设置在接待区域之后,让客户在跨过接待区域的同时对企业有一个初步的认识,绿植墙的设计设计师希望将环保、健康、低碳融入空间。

动线的设计:客户跨过前台,经过动线的指引进入室内,动线的设计中,设计师以鲜明为主要设计原则,在满足企业的基本需求之后,设计师为动线加入了指引的属性,虽是一个简单的设计,但是却人性化的赋予了动线全新的职责。

办公区域的设计:设计师在设计的时候,利用硬装将每个办公区域设计为圆形,一个部门被分散在数个圆形内,这样的设计使空间如流水般灵动、自然,在加上米黄色、白色的点缀,空间更显温馨、整洁同时又不失干练,极富人情味儿。

培训区域的设计:四周的隆起一方面有拱卫中央的寓意,另一方面人为的为空间增加了承载能力,由于空间的承载能力有限,若是以为的利用办公桌则会使空间显得过于拥挤,再次情况下设计师将四周做为备用椅子,新颖又极具创意。

休息区域的设计:设计师在设计的时候,以高低来增加空间的承载能力与空间的魅力,高低之间的自然落差,一方面表现出空间落差的魅力,另一方面这样的空间不会显得局促与紧张,为员工打造惬意、自然的减压空间。

总经理办公室的设计:设计师在设计的时候,在空间中配置了新颖的电话类型沙发、创意性办公桌,造型与收纳相结合的展示柜,各个空间相互组合打造一个时尚、创新的空间,在同时表现了总经理个人的品味与档次。
本次办公室方案设计解析到此结束,希望可过小编的介绍可以为需要的朋友们带来一丝灵感与创意,关注更多的办公室设计方案,请持续关注三亩田办公空间设计。