本次为娱乐公司办公室设计方案,企业是一家迅速成长的年轻公司,为客户提供订阅式的娱乐服务,设计师在办公室设计中,希望为企业打造充满活力和创造力的办公空间,设计师将明艳的色彩、和白色表面加以巧妙运用,既节省了资金,同时也达到了原有的效果。

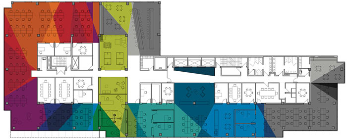
娱乐公司办公室设计平面:通过平面图可以看出,办公区域在外,使用空间在内,办公空间在外可以保证采光,使用空间在内保证空间的安静。

娱乐公司办公室进门区设计:进门区设计师采用角度的变化,来做为设计的开端,夹角由窄到宽、方向由远及近,表示着企业的路越走越宽,企业越做越大,企业与客户之间的距离由远及近。

娱乐公司办公室过道设计:过道由白色构成,给人以视觉上的由远及近,白色做为百搭色,在这里得到了很好的证明,每个空间与过道相连,颜色各异,让人不会出现视觉疲劳。

娱乐公司办公室设计:黄色有着太阳般的光辉,它灿烂、辉煌又象征着照亮黑暗的智慧之光,它让空间充满希望和活力,设计师希望给人以轻快的感觉,以此拉近彼此之间的关系。

娱乐公司办公室走廊设计:我们常见的走廊都是一种颜色到底,但设计师不需要如此,设计师为每一段都制定了属于自己的色彩,设计师希望随着色彩的变化,给人一种不同的视觉感受。

娱乐公司办公室动线设计:颜色本是自然界中客观存在的,由此可见颜色存在着某些自然的属性,设计师希望从颜色之间的转换,让人直观的区别各个不同的空间。

娱乐公司办公室娱乐区设计:随着时代的发展,设计也发生了翻天覆地的变化,设计理念也同样如此,乒乓球不仅可以开发智力,同样可以锻炼身体,智力与体力是人的根基所在。

娱乐公司办公室交流区设计:此处可以作为会议室、交流区、洽谈区存在,此处与乒乓球区相邻,当遇到困难的时候,可以去打打乒乓球,让自己放松下来,这样有利于问题的解决。

娱乐公司办公室桌椅设计:若不是黑色椅子摆放在哪里,我们或许根本发现不了这里有会议桌,设计师这样做一来是为了视觉上的感受,二来是希望视觉与使用可以完美契合。

娱乐公司办公室色彩设计:从此处可以看到各种不同的色彩,白色包容了所有的色彩,这里也展现了企业包容的企业理念,正所谓海纳百川,有容乃大,这也是企业理念的展示写照。

娱乐公司办公室踢脚线设计:色彩多了需要注意的就是空间的转换,白色做为基本判断色,在划分空间的同时,也在时刻提醒大家每个空间的边界,设计、视觉、使用完美结合。

娱乐公司办公室办公区设计:白色的顶和墙面,可以很好的保留采光,光是人生存不可或缺的重要资源,设计师希望办公也同样如此,开放式的办公空间加上采光,让空间自由有活力。

娱乐公司办公室地毯设计:有光所以有了色彩,设计师在光照强烈的办公空间,采用了各种各样的地毯,以此吸附光的强度,让光变的柔和,同时空间在色彩与光的搭配下,变得更加美丽。

娱乐公司办公室洽谈区设计:洽谈区位于办公区域的内侧,这里有沙发、桌椅,最重要的是此处的风景极好,在这里洽谈、交流也不失为一种享受,设计师希望通过设计让人喜欢思考、爱上思考。
本次娱乐公司办公室设计方案讲解到此结束,在本次办公室设计中,设计师为空间打造了,具有现代感的开放式办公室设计方案,将明艳的色彩和白色表面加以巧妙的运用。