本次为设计公司办公室设计方案解析,设计面积800平方,本次办公室设计从每位职员的使用需求出发,整个办公空间以明快、活跃为主,让办公空间不再沉闷、乏味,整个办公空间充满了各种生活元素和活动的空间,让办公室成为家、休闲场所、交流场所、聚会场所。

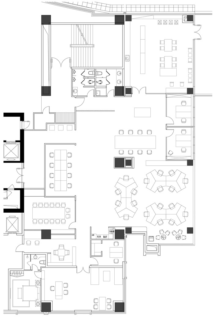
办公室设计方案平面图:通过平面图可以看出整个空间是一个不规则的空间,在空间的设计中设计师着重强调动线的布置,一个畅通的动线系统是整个空间成功的前提,设计师的目的就是让工作充满乐趣。

办公室进门区域设计:在办公室设计中,设计师放弃了前台的传统设计,因为不规则的空间不容许前台的出现,此处是客户进入空间的第一个区域,设计师将此次设计成开放式的办公格局,意在为空间的畅通打下基础。

办公室办公区设计:人性化的办公桌造型各不相同,这也是设计师根据空间的本身格局设计出来的,在设计师看来不规则的空间,就要采用不规则的设计,不规则对不规则可以让设计更加贴近于建筑本身。

办公室集中办公区设计:此处使用120度角的办公桌,每一位员工都有一个刚刚好的工作空间,6张桌子组合成一个不规则的圆,通道则是根据不规则而自然留下的空间,这样也便于办公之间的相互交流。

办公室吧台办公区设计:此处是做为辅助性空间出现的,当设计师们没有灵感的时候,可以自己一个人坐在此地构思自己的灵感,在设计师看来独处是一个人灵感的重要来源,木饰面也可以有效的抵消周围的压力。

办公室休闲区设计:此处设计师没有采用过多的设计,而是充分尊重了员工的要求,设计师仅对墙面做了大致的设计,其他的都留给了员工自己去设计、去构思,去打造带有企业特性的休息区域。

办公室设计师讲台设计:此处是企业内部学习、交流的地方,在这样每一个设计师摇身一变变成了演讲家,各家演讲自己的心得与收获,彼此之间在沟通之中不断地成长,这也是企业欣欣向荣的重要推动力。

办公室阅读室设计:此处摆放的是企业购买的各种新型的杂志与经典的书籍,目的就是供设计师们参考与学习,在这样的环境下设计师得以不断的成长,在这里设计师不断的完善自己的思路,这也是企业做好、做大的驱动力。

办公室会议室设计:洁白的空间贯穿整个空间,这样的目的就是希望空间的阻碍减少到最小,在会议开展的时候大家可以各抒己见,在相互讨论之中达到解决问题的终极目标。
本次设计公司办公室设计方案讲解到此结束,在本次办公室设计中,设计师首先要做的就是保证空间的动线完整,这样做的目的就是化解不规则的空间弊端,各个空间的结合部设计师也均采用开放式进行衔接,以此保证空间的畅通无阻。