本次为新中式风格办公室设计方案,设计面积360平方,在本次办公室设计中,设计师在色彩搭配上,希望将古典元素与现代元素相互结合,为此设计师特意采用具有古典、韵味的原始木纹、古铜做为材料,在设计中严格按照6:3:1的黄金比例搭配,使得古典和现代色彩在办公室设计中完美结合。

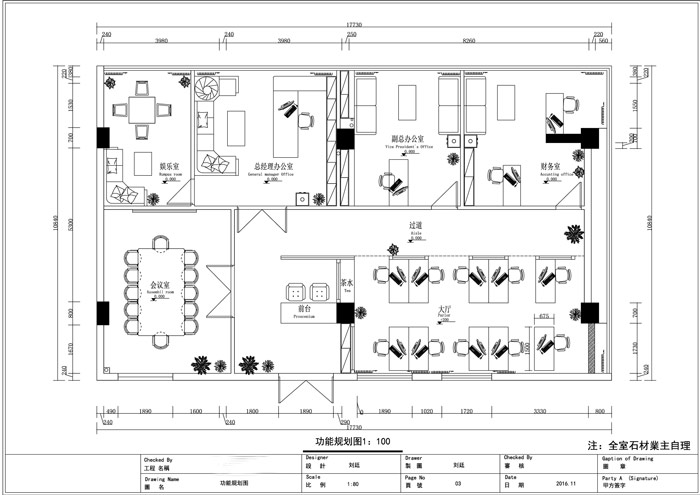
新中式办公室设计平面:整个办公空间由前台、茶水间、过道、办公区域、会议室、总经理办公室、财务室、休息区域构成,整个空间由5间独立写字楼打通组成,故设计师在设计中刻意增加结构的层次感。

新中式办公室前台设计:客户进入办公室之后,首先感受到的就是企业的品味,这也是企业本身所需要的,设计师在设计中将中华文化渗透在其中,让人看到之后感觉格外的亲切,以此打造设计、文化的融合。

新中式办公室过道设计:过道在此处不仅起到连接的作用,同时也将空间一分为二,设计师将空间按照4:2:4的比例进行划分,左侧为办公区域,右侧为会议室、总经理办公室,以此促使整个空间格局的形成。

新中式办公区设计:中式家具的引入让空间有了一种厚重的感觉,这也是中式设计所表达的一种形式,同时空间也给人一种书香气息,设计师希望以书香气息让大家的心可以静下来,以此提炼大家的心境。

新中式办公区设计:当窗帘拉下来之后,整个空间有了一种山水蒙蒙的感觉,山水画与窗帘结合在一起,也是设计师的一种尝试,设计师希望在有限的空间内,为每一件物品都赋予其特殊的属性,将设计表现的淋漓尽致。

新中式办公室会议室设计:这样的空间给人的第一感觉就是宁静与舒心,这也是设计师赋予会议室的一个全新感觉,这样的感觉主要变现在心理层次,设计师希望设计可以走进人的心中。

新中式办公室会议室设计:有中式的表现当然要有阳光的渗透,在中式设计中强调阳光的自然渗透,不会刻意的设计,整个空间给人的第一感觉就是自然、和谐,阳光照射进空间寓意一切迷雾都将散尽。

总经理办公室设计:大班台是中式风格中常见的组合,此处给人的第一感觉只有两个词,那就是大气与稳重,这样的设计既满足了客户对于总经理理想的认知,同时这样的环境对于总经理本人也有不小的促进作用。

总经理办公室设计:阳光的投射让空间有不一样的感受,随着太阳位置的不断变化,所带来的空间感受也是截然不同,在这里设计师要表现的就是阳光的东升西落,阳光的有序与变化,寓意着企业成长所必须的过程。
本次新中式风格办公室设计方案讲解到此结束,在本次办公室设计中,设计师希望将传统文化与当代文化相结合,古典的山水、字画、石雕,现代的金属、抽象画、现代铁艺的结合,呈现一个具有古典韵味又容纳现代氛围的办公空间。