本次为联合办公空间设计方案,设计面积1970平方,设计师在办公室设计中,希望打造一处自由的办公空间,而自由的办公空间需要有秩序的设计来实现,故此设计师以可见的秩序与不可见的自由作为骨架,构建出的智慧空间,即拥有 “随处可以办公,随处有序办公”的设计特质。

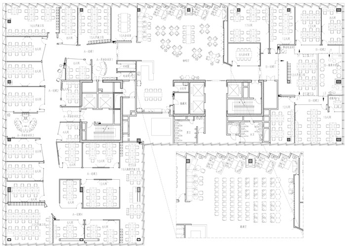
联合办公设计平面图:整个空间分布着大大小小的办公工位,咋一看空间十分凌乱,但是仔细一看每一个都十分有序,设计师希望的就是整体的有序,联合办公需要的就是有序,这也是设计师设计的重心。

联合办公开放式办公区设计:此处开放办公区位于窗户旁边,办公室大致可以容纳15个人,此处是整个空间分离出来的独立空间,在整个空间中遍布着大大小小的独立空间,在这里创业者在开放与独立之前,完成自己的事业积累。

联合办公独立办公区设计:此处办公区位于空间的中心区域,隔断将空间隔离成一个个大小不一的办公区域,此处可以容纳10个人,这样设计也为创业公司提供更多的可能性,让创业者有更多的选择。

联合办公培训、汇报区设计:整个联合办公是按照空间的属性进行区分与设计,其目的就是希望将空间合理的加以利用,此处秉持预约制度,企业可以通过提前预约来支付场地费用,这样很大程度上节省了企业的开支。

联合办公会议室设计:会议室被设计师集中安置在一个大区域之中,隔断将空间隔离成大会议室、中会议室、小会议室,以此满足了各种类型的会议需要,此处也同样是预约制,最大程度上节省企业的额外开支。

联合办公茶水间设计:空间有独立的茶水间,也有开放式的茶水间,不同的设计满足不同企业的需求,此次是一处独立的茶水间,设计师使用实木饰面进行隔离,在此处员工通过木材与绿植感受到大自然的气息。

联合办公休息区设计:此处是为企业提供交流、休息、洽谈的区域,此处位于空间的一侧,在这里可以一边交谈一边欣赏外界的美景,这也是联合办公空间的一处福利,目的就是希望企业在这样的环境下可以快速发展。

联合办公交流区设计:在这里所有的企业都汇聚在此处,在这里大家可以认识到和自己一样的创业者,在这里可以交到新的朋友,也可以找到新的合作伙伴,这里充满了机遇与机遇,这也是联合办公风靡的一个重要原因。
本次联合办公空间设计方案解析到此结束,在本次联合办公空间设计中,设计师参考了很多联合办公的设计方案,根据现场的实际情况提出自己的设计方案,设计以实际为出发点,博取众家之长,打造全新的联合办公空间。