本次为小型办公室改造设计方案,在办公室改造过程中,设计师基于安全、成本等多方面的考虑,尽量减少对原有建筑的拆改,通过开放的布局和集约的尺度,满足多元化的使用需求,在设计中也尽量在原有的基础之上进行升级与优化,在保证成本的前提之下,贴合空间原本的设计。

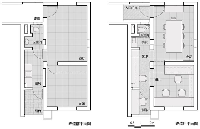
小型办公室设计平面图:通过改造前和改造后的平面图比对,可以发现设计师基本上延续了原本的设计,只是对每一个空间进行了重新的定义,由此可见设计师的空间掌控能力。

小型办公室入口设计:此处设计师加了一个蓝色的金属盒子,目的就是希望为进门留有余地,之所有留下余地,目的就是希望打造一个开放的入口空间和视觉标识。

小型办公室会议室设计:会议区是进门后的第一个空间,将会议室安置在此处,也是希望会议室承担起接待的任务,这也正是“麻雀虽小,五脏俱全”的奥秘所在。

小型办公室文印区设计:此处是连接内部空间、外部空间、茶水区的过渡区域,也属于空间的中心区域,设计师考虑到便捷性,故此将文印区安置在此处,既方便办公,也方便会议使用。

小型办公室过道设计:从文印区向内有办公室、制作室,空间虽小但在设计师的设计手法之下,一切都显得错落有致,这也正是设计的魅力所在。

小型办公室办公区设计:定制的办公桌左右完全与墙相契合,不多也不少,这也保证空间的整体性,绿植点缀在空间的各个角落,阳光透过窗户照入室内,让整个空间明亮、活泼。

小型办公室办公区设计:此处位于会议室的墙壁之后,上边隔层储物、下边办公区办公,上边隔层很好的阻隔灯光的直接照射,避免灯光对员工造成影响。

小型办公室制作区设计:此处是一个独立的空间,目的就是希望打造一个独立的制作空间,以此满足企业的制作需要,绿植的点缀让空间有了一丝绿意。
本次小型办公室改造设计方案介绍到此结束,在本次办公室设计中,设计师的主要目的就是不增加额外的成本,设计师希望在原有基础之上,加以改进与优化,以此在保证质量的同时也保证成本。