本次为创客孵化中心办公楼设计方案,设计师在本次办公室设计中,设计师以一种多元文化的思考方式,大胆地将工业风的活力、与现代办公模式的需求相结合,同时兼容休闲办公与时代创新,反映出个性化设计将成为未来设计的主流,这样的设计让空间得以满足更多需求。

办公楼一楼设计平面图:人们通过出入口进入室内,经过前台,然后进入接待区域,一楼包括培训室、库房、咖啡吧、储藏空间、技术平台。

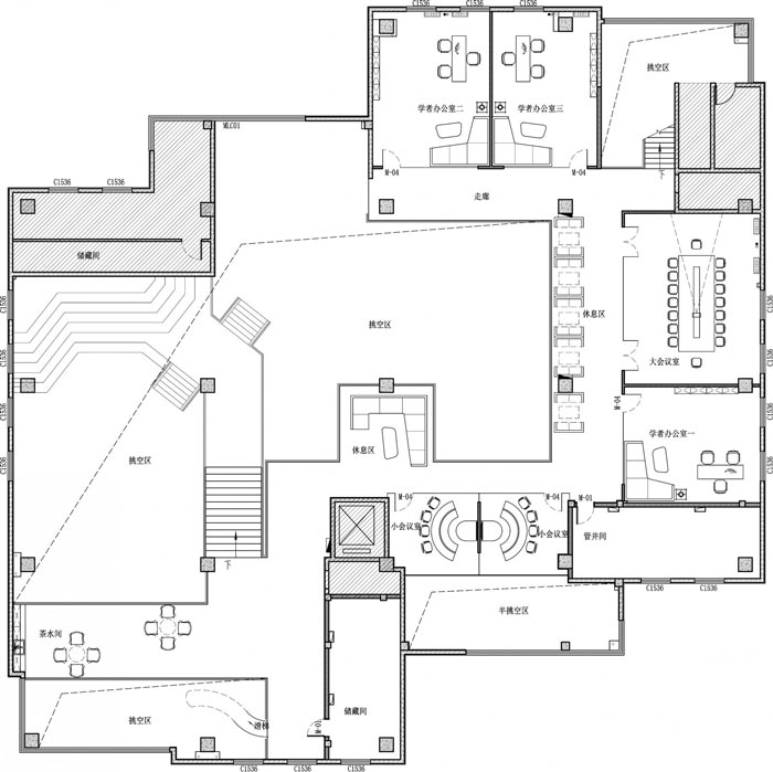
办公楼设计平面图:此处空间包括:私人办公室、休息区、大小会议室、茶水间、储藏间,设计师的目的就是为了让空间互通有无。

办公楼办公区设计平面图:此处办公区共分为八个区域,一共可以承载将近180个人在这里办公,同时这里还配置了经理办公室、财务室、中会议室、打印区等配套设施。

办公楼设计平面图:此处与主流办公区相似但又不同,这里承载办公的人数缩减了很多,但相对的休息区、露台等人性化配套设施却多了不少,每一个区域都各有自己的特色。

办公楼进门区设计:红色的大门首先起到的就是明显的标示作用,其次也代表着企业的红红火火,在从外向内的过程中,可以对内部空间有一个大致的了解,为客户留下第一印象。

办公楼前台设计:前台最重要的作用就是引导与接待,前台设计师将其设计成三角形,三角形设计象征着一种进取的力量,设计师希望客户在这里可以寻找到志同道合的朋友。

办公楼大厅设计:前台的设计相对空旷一些,这样一来可以承载更多的人,二来更利于空间的疏导,三来预示着大家为了梦想汇聚在一起,然后分头去寻找与自己志向相合的人。

办公楼展示墙设计:展示隔断一来将内部空间与外部空间很好的加以阻隔,二来也起到很好的展示作用,这样做的目的就是让内外空间在展示墙的阻隔下,各行其道。

办公楼接待区设计:进入空间后接下来就是坐下来好好交流交流,接待区位于前台的后方,在这里即满足了公司与公司、公司与客户之间的交流,在区分空间的同时,满足相互的需求。

办公楼设计一楼俯视图:站在楼梯上可以将整个空间尽收眼底,开放式空间加上错落有致的设计,让空间也成为一套别样的风景,在劳累之余站在这里,也不失为一种视觉享受。

办公楼楼梯设计:楼梯位于前台的一旁,这样客户可以在一楼与二楼之间自然选择,楼梯的阶段性设计,也是为了让大家在上楼的同时,也可以欣赏到整个空间的景色。

办公楼滑梯设计:滑梯我们估计也只有在小时候才玩过吧,滑梯的存在就是希望大家可以开放自我,希望大家可以不忘初心,在娱乐的同时可以找回心中的美好。

办公楼茶水间设计:茶水间位于空间的中心区域,之所以安置在此处的目的,就是希望满足各个区域的需求,设计师希望设计可以更加人性化。

办公楼交流区设计:在各个门口设计师都会安置交流区在哪里,目的就是希望为空间提供更多可能,一来可以将空间利用达到最大化,二来也为企业营造不错的办公氛围。

办公楼休息区设计:在空间中充斥着阳光与绿植,大家在这里休息的同时,可以感受到不一样的空间氛围,设计师希望大家可以在这里稍事休息,在这里远离城市的喧嚣。

办公楼交流区域设计:这里汇聚了空间的所有人,在这里有认识的、有不认识的,大家相互汇聚在一起,在这里可以交到更多的朋友,企业也有更多发展的机会与机遇。

办公楼休息区域设计:这里是一个远离喧哗、远离压力的区域,大家在这里可以放飞心情,在这里聊聊天、偷偷懒,在这里大家可以得到暂时的安宁,休息之后走上新的征程。

办公楼会议室设计:会议就是思想碰撞的场所,在这里大家的想法在这里交汇、讨论、交融,正如树干与树根的关系,设计师希望大家的思路可以活跃起来,由各抒己见到万法归一。

经理办公楼设计:在这里设计师没有做过多的设计,设计师希望每个经理都有自己的特色办公室,设计师为他们留下来自由发挥的空间,重新组合全在一念之间,没有一成不变的设计。
本次创客孵化中心办公楼设计方案讲解到此结束,在本次办公室设计中,设计师在开放性的大空间背景之下,将封闭空间、会议空间、办公空间、休息空间等各种空间有条不紊的融入其中。